
| 所在地 | 〒111-0042 東京都台東区寿1丁目11番6号 [ google map ] | ||
|---|---|---|---|
| アクセス |
都営大江戸線 蔵前駅5分 都営浅草線 蔵前駅 7分 銀座線 田原町駅 7分 |
||
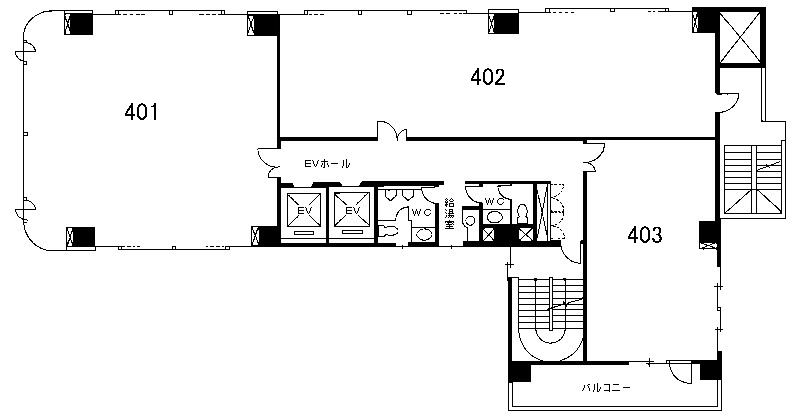
| 所在階 | 402 | 入居可能日 | --- |
| 用途 | 事務所 | 契約面積 | 36.080坪/119.260m² |
| 構造 | SRC造 | 竣工日 | 1990年 7月 |
| エレベーター | 11人乗 2基 | 空調 | 有 |
| 設備 | 24時間機械警備、 天井高 梁なし2,400mm、 タイルカーペット、 OA、 | ||
| 備考 | 入口が3箇所あり、レイアウトがしやすい事務所です。また、エントランスが開放的な空間で、来客の多い企業にお勧めのビルです。 | ||
外観 |
坪数 |
平面図 |
物件情報 |
|---|---|---|---|
![]() |
29.550坪 |
|
詳細 |
![]() |
29.580坪 |
|
詳細 |
|
|
30.320坪 |
|
詳細 |
![]() |
32.550坪 |
|
詳細 |
![]() |
33.050坪 |
詳細 |
|
![]() |
33.670坪 |
|
詳細 |
![]() |
33.860坪 |
|
詳細 |
![]() |
34.560坪 |
|
詳細 |
![]() |
35.260坪 |
|
詳細 |
![]() |
36.690坪 |
|
詳細 |
![]() |
37.930坪 |
|
詳細 |
![]() |
37.950坪 |
|
詳細 |
![]() |
38.260坪 |
|
詳細 |
![]() |
38.430坪 |
|
詳細 |
![]() |
38.830坪 |
|
詳細 |
![]() |
40.230坪 |
|
詳細 |
![]() |
40.950坪 |
|
詳細 |
![]() |
41.260坪 |
|
詳細 |
![]() |
41.450坪 |
|
詳細 |
![]() |
41.690坪 |
|
詳細 |
![]() |
42.200坪 |
|
詳細 |
![]() |
44.240坪 |
|
詳細 |
![]() |
44.390坪 |
|
詳細 |
![]() |
44.410坪 |
|
詳細 |
![]() |
44.880坪 |
|
詳細 |
![]() |
46.860坪 |
|
詳細 |
![]() |
47.160坪 |
|
詳細 |
![]() |
47.580坪 |
|
詳細 |
![]() |
48.920坪 |
|
詳細 |