- 会社案内
- 事業内容
- 管理不動産・募集物件
- 採用情報
- OFFTO

- PROPERTY JOURNAL

MENU
おかげさまで成約いたしました。
ありがとうございました。
所在地
〒150-0012 東京都渋谷区広尾1丁目15番6号 [ google map ]
アクセス
JR恵比寿駅5分
日比谷線恵比寿駅 5分
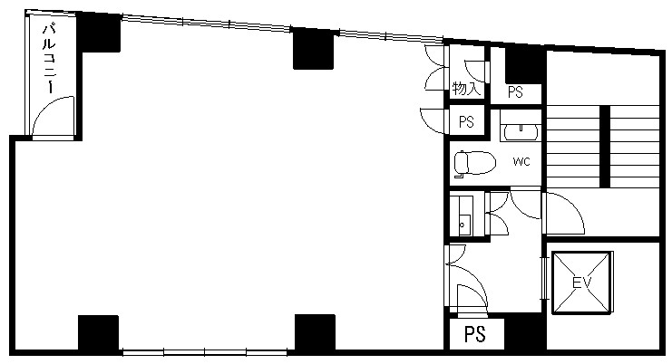
所在階
2階
入居可能日
---
用途
事務所
契約面積
20.350坪/67.300m²
構造
RC造
竣工日
1989年 9月
エレベーター
9人乗り 1基
空調
有
設備
24時間機械警備、 天井高 2400mm、
備考
立地の分かりやすさと控えめながらほんのりとした明るさを持ったたたずまいに、来館者は必ず好印象を持つでしょう。