- 会社案内
- 事業内容
- 管理不動産・募集物件
- 採用情報
- OFFTO

- PROPERTY JOURNAL

MENU
おかげさまで成約いたしました。
ありがとうございました。
所在地
〒333-0851 埼玉県川口市芝新町6番15号 [ google map ]
アクセス
JR蕨駅5分
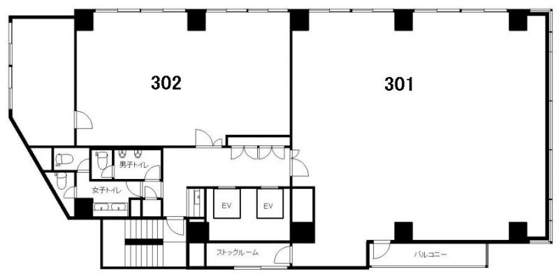
所在階
301
入居可能日
---
用途
事務所
契約面積
51.980坪/171.825m²
構造
SRC造
竣工日
1992年 8月
エレベーター
11人乗/90M×2基
空調
有
設備
24時間機械警備、 天井高 梁なし2,400mm、 タイルカーペット、
備考
希少な純オフィスビル。また採光が非常によく、エントランスの明るさに目を見張ります。 1Fは外部との専用入口があります。
外観 |
坪数 |
平面図 |
物件情報 |
|---|---|---|---|
![]() |
41.690坪 |
|
詳細 |
![]() |
44.240坪 |
|
詳細 |
![]() |
44.390坪 |
|
詳細 |
![]() |
44.410坪 |
|
詳細 |
![]() |
44.880坪 |
|
詳細 |
![]() |
46.860坪 |
|
詳細 |
![]() |
49.640坪 |
|
詳細 |
![]() |
50.970坪 |
詳細 |
|
![]() |
51.670坪 |
|
詳細 |
![]() |
51.980坪 |
|
詳細 |
![]() |
52.080坪 |
|
詳細 |
![]() |
52.920坪 |
詳細 |
|
![]() |
54.380坪 |
|
詳細 |
![]() |
55.570坪 |
|
詳細 |
![]() |
55.740坪 |
詳細 |
|
![]() |
56.110坪 |
|
詳細 |
![]() |
56.150坪 |
詳細 |
|
![]() |
56.150坪 |
詳細 |
|
![]() |
56.150坪 |
詳細 |
|
![]() |
56.150坪 |
詳細 |
|
![]() |
56.150坪 |
詳細 |
|
![]() |
56.150坪 |
詳細 |
|
![]() |
56.660坪 |
|
詳細 |
![]() |
56.800坪 |
|
詳細 |
![]() |
57.240坪 |
|
詳細 |
![]() |
57.240坪 |
|
詳細 |
![]() |
57.480坪 |
|
詳細 |
![]() |
58.613坪 |
|
詳細 |
![]() |
59.140坪 |
|
詳細 |
![]() |
60.450坪 |
|
詳細 |
![]() |
61.800坪 |
|
詳細 |
![]() |
63.000坪 |
|
詳細 |
![]() |
63.240坪 |
|
詳細 |
![]() |
64.580坪 |
|
詳細 |
![]() |
69.980坪 |
|
詳細 |
![]() |
70.330坪 |
|
詳細 |
![]() |
70.380坪 |
|
詳細 |