- 会社案内
- 事業内容
- 管理不動産・募集物件
- 採用情報
- OFFTO

- PROPERTY JOURNAL

MENU
おかげさまで成約いたしました。
ありがとうございました。
所在地
〒104-0045 東京都中央区築地3丁目3番2号 [ google map ]
アクセス
日比谷線築地駅2分
有楽町線新富町駅 2分
所在階
2階
入居可能日
---
用途
事務所
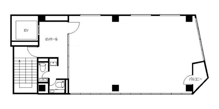
契約面積
27.570坪/91.144m²
構造
S造
竣工日
2007年 8月
エレベーター
11人乗105/m× 1基
空調
有
設備
24時間機械警備/警備カード・静脈認証装置、 天井高 2400mm、 タイルカーペット、 OA、
備考
1FのabcROOMを応接スペースとすると、専用室のレイアウトにゆとりが生まれます。また、1時間毎に予約が出来るので、便利です。
外観 |
坪数 |
平面図 |
物件情報 |
|---|---|---|---|
![]() |
22.870坪 |
|
詳細 |
![]() |
23.950坪 |
|
詳細 |
![]() |
25.430坪 |
|
詳細 |
![]() |
25.740坪 |
|
詳細 |
![]() |
26.600坪 |
|
詳細 |
![]() |
26.870坪 |
|
詳細 |
![]() |
27.570坪 |
|
詳細 |
![]() |
27.800坪 |
|
詳細 |
![]() |
28.360坪 |
詳細 |
|
![]() |
28.460坪 |
|
詳細 |
![]() |
29.250坪 |
詳細 |
|
![]() |
29.550坪 |
|
詳細 |
![]() |
30.190坪 |
|
詳細 |
|
|
30.320坪 |
|
詳細 |
![]() |
32.550坪 |
|
詳細 |
![]() |
33.050坪 |
詳細 |
|
![]() |
33.670坪 |
|
詳細 |
![]() |
34.560坪 |
|
詳細 |
![]() |
35.260坪 |
|
詳細 |
![]() |
35.360坪 |
|
詳細 |
![]() |
35.360坪 |
|
詳細 |
![]() |
36.690坪 |
|
詳細 |
![]() |
37.930坪 |
|
詳細 |
![]() |
37.950坪 |
|
詳細 |
![]() |
38.260坪 |
|
詳細 |
![]() |
38.430坪 |
|
詳細 |