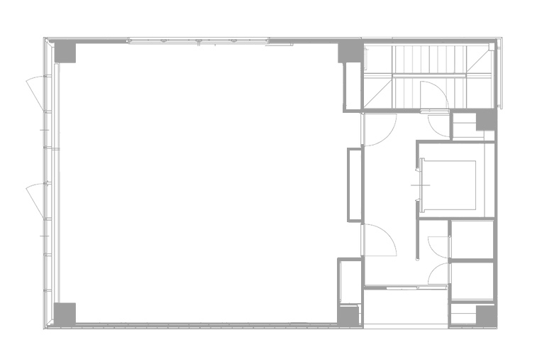
フロアマップ

基準階 30.320坪

シンプルにして自由な空間

1フロア1専用室、約30坪のオーソドックスな形で、2か所の出入口を有していることにより、自由で機能的なオフィスレイアウトが可能です。
10名~30名の企業に最適なフロアです。

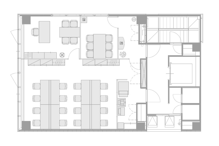
フロアマップ

PLAN A

  • 通常デスク 16席
  • 管理職用デスク 1席
  • 打合せ用デスク 4席
  • 会議室 6席