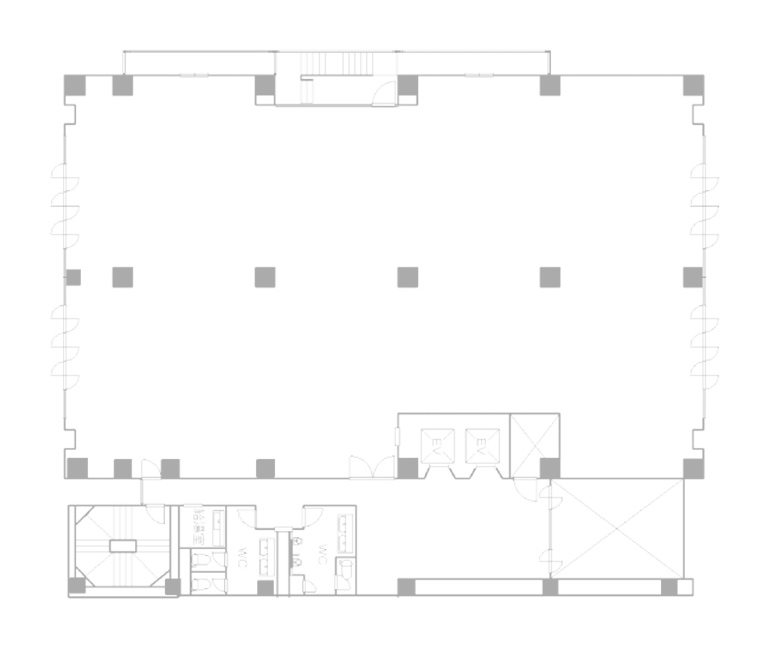
フロアマップ

基準階 143.130坪

幅広いニーズに応えられるフロア構成

フロアは基準階約143坪の使いやすい広さ。パーテションで区切ることでテナントのニーズに合わせたレイアウトを設計できます。
50名から100名程度の利用に適したフロアです。

フロアマップ

PLAN A

  • 通常デスク 48席
  • 管理職用デスク 3席
  • 代表専用執務室
    • 代表用デスク 1席
    • 応接セット 4席
  • 中会議室 12席
  • 小会議室 2部屋 8席
  • 応接室 5席
  • 休憩室 6席
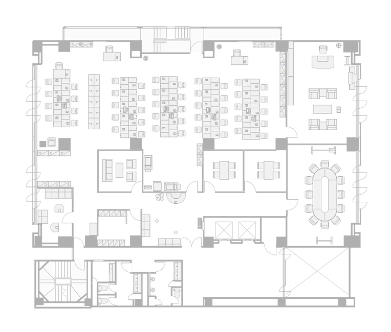
フロアマップ

PLAN B

  • 通常デスク 84席
  • 管理職用デスク 6席
  • 代表専用執務室
    • 代表用デスク 1席
    • 応接セット 5席
  • 大会議室 34席
  • 小会議室 6席