


白い御影石の外壁とガラス面が描く縞模様が凛とした印象を来訪者に与える「NEWS日本橋堀留町」。デザインから機能性まで、”中規模オフィスビルはかくあるべき”という基本理念を貫徹しています。
2008年竣工という築浅の物件でありながらリニューアルを計画的に実施し、オフィスビルとしての基本軌道を外れることなく、常に先進的なビルへと進化を継続しています。
スペック
圧倒的開放感を感じるエントランス
天井高7200mm、シンプルにして圧倒的開放感を有するエントランスは一見の価値あり。総ガラス張りの第一のゲートをくぐり風除室に入ると現れる第二のセキュリティーゲート。解放感と様式美を兼ね備えたシンプルモダンを体現しつつも、セキュリティー等の機能性までデザインされ尽されています。
大切なお客様を丁重にお迎えする、グレード感とゆとりに満ちた空間です。
高く広い白亜のエントランスホール
風除室を抜けると、その先に広がるのは天井高3,600mmのワイドなエントランスホール。広い入口から差し込むやわらかな日差しと照明による調和された光によって、美しさが際立ちます。
一切の無駄を省いた機能美と、高く広く明るいエントランスホールによって、入居企業の格調高さが表現されています。
快適さを追求した共用廊下
共用廊下にも上質なカーペットを敷設。ゆったりとした広いスペースに清掃の行き届いた白い内装とこれを引き立たせるやわらかな外光を取り込む広い採光窓。機能美と快適さを兼ね備えたエレガントな共用廊下です。
清潔感と開放感に優れた水回り
トイレ・水回りは、男性用、女性用ともに清潔感を与える白のインテリアで統一。可能な限り仕切りもガラススクリーンとする等、使用者が清潔感と開放感を感じられるよう空間を設計。
人感センサーで自動・点灯・消灯する照明と換気扇、抜群の使用感を誇る最高級ネオレスト便器の採用等、使用者の”快適な体験”をとことん追求しています。
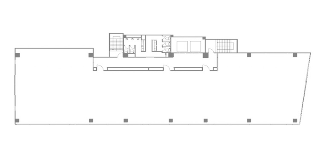
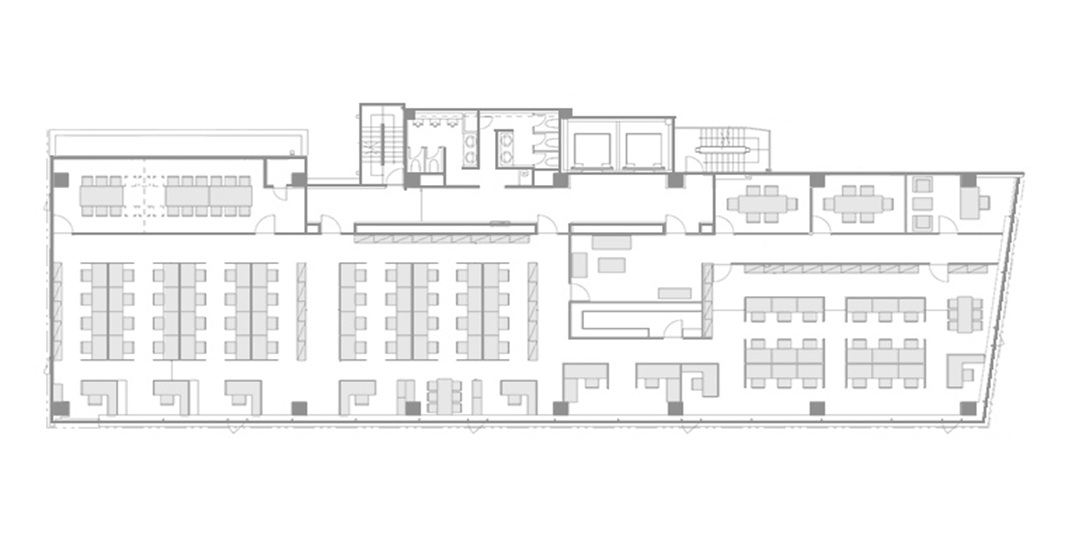
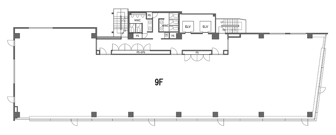
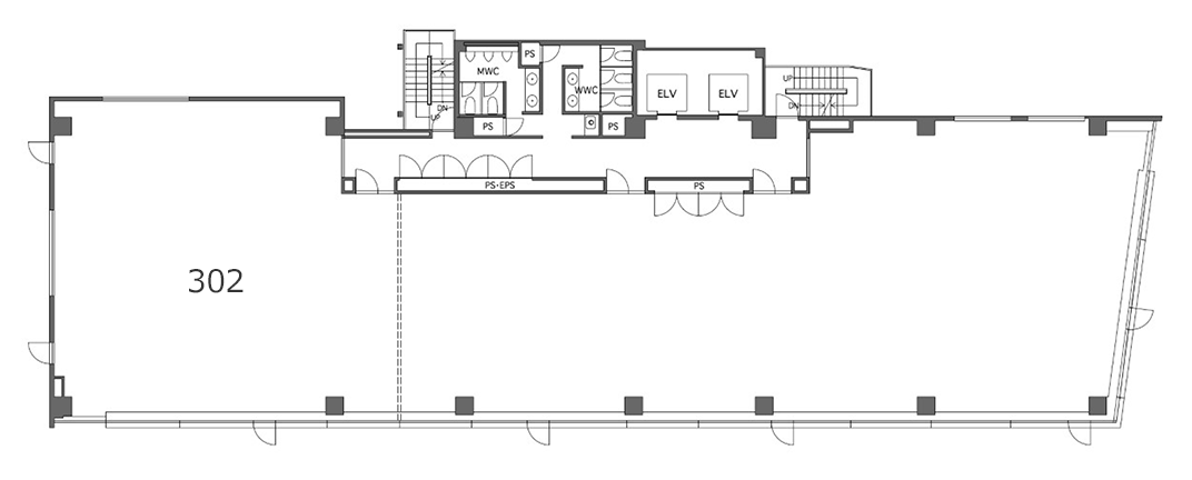
光溢れるスタンダードな専用室
1フロアを独占する約167坪の専用室は、無柱空間と東・南面からの2面採光により、やわらかな光が溢れる開放的なオフィス空間を演出。
シンプルな長方形の室内、3つの出入口とOAフロアはテナントの自由なレイアウトを実現。
快適さと機能性を兼ね備えた最高のオフィス空間がここにあります。
建物概要
- 物件名
- NEWS日本橋堀留町
- 所在地
- 〒103-0012 中央区日本橋堀留町1丁目9番11号 [ Google map ]
- 構造
- 地上10階 地下1階建
- 用途
- 事務所
- 設備
- EV2基(15人乗)、冷暖房空調設備(各階個別式ガス空調)、24時間機械警備システム、OAフロア
- 竣工
- 2008/4
- 交通
-
東京メトロ日比谷線、都営浅草線 人形町駅 徒歩4分
東京メトロ日比谷線 小伝馬町駅 徒歩5分
都営新宿線 馬喰横山駅 徒歩7分
都営浅草線 東日本橋駅 徒歩7分
東京メトロ 銀座線、半蔵門線 三越前駅 徒歩8分
- 契約
- 2年
- 更新料
-
【302号】新賃料1ヶ月
【9階】無
- 償却
-
【302号】解約時賃料2ヵ月
【9階】無
- 契約面積
- 共用部分含む
- 専用部分清掃
- 別途負担
- 備考
- 賃料・管理費にかかる消費税等は、別途ご負担頂きます。
環境

ビジネスシーンを広げる
利便性に優れた立地
東京メトロ日比谷線および都営浅草線「人形町駅」から徒歩約3分、徒歩7分圏内に東京メトロ半蔵門線、都営新宿線など地下鉄4線5駅が利用可能という抜群のアクセス環境。通勤にも外勤にも利便性が高く、さまざまなビジネスシーンに対応した立地。周囲にはコンビニエンスストアや銀行、郵便局などの公共施設や飲食店も充実。日々の利便性も申し分ありません。
アクセス
内覧のご案内
物件のお問合せ・内覧をご希望の方は、お電話またはお問い合わせフォームよりご連絡をお願い致します。
株式会社スペースライブラリ リーシング課






















